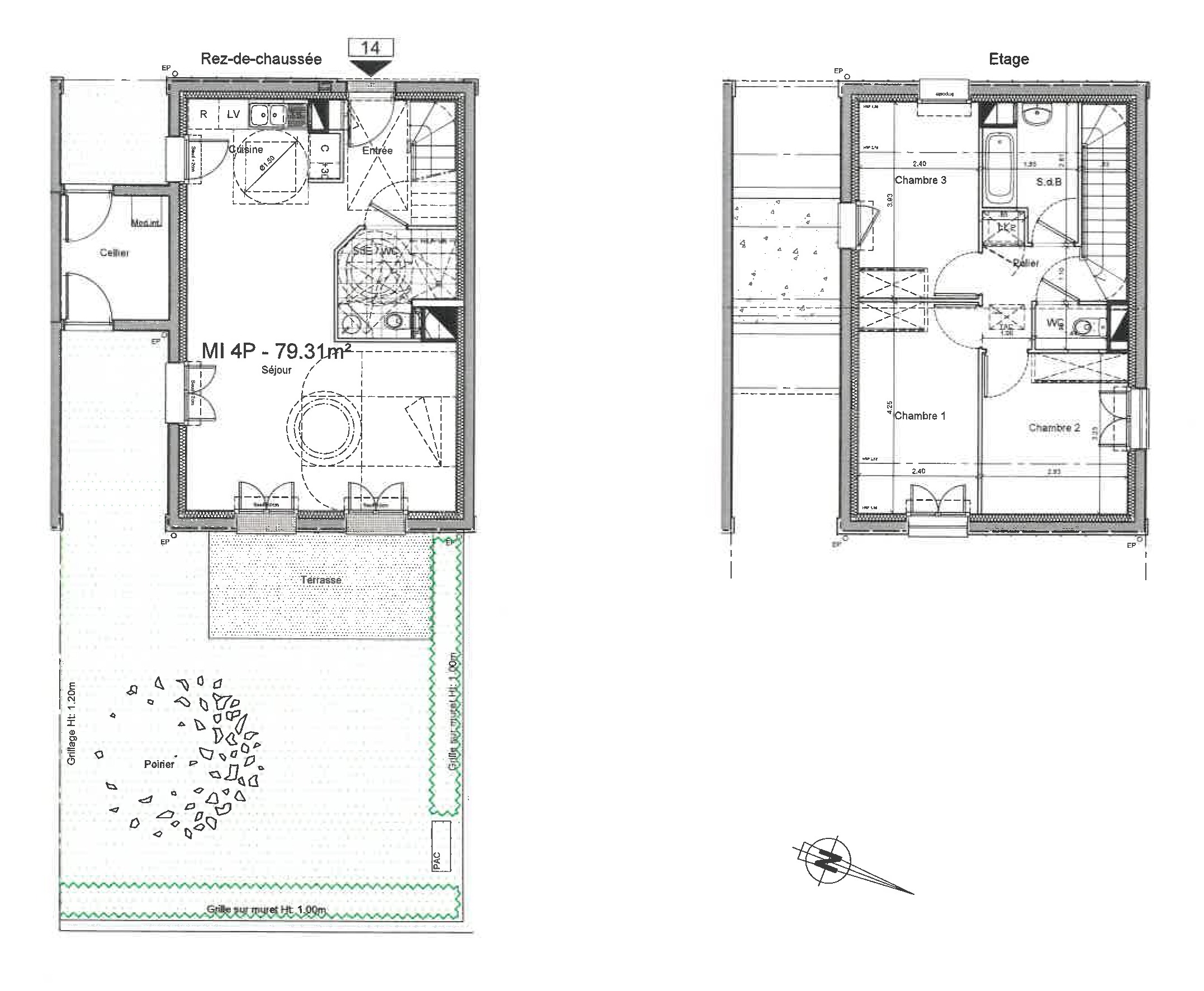
Dinard – Maison T4

Les Serres – Maison T4

Dinard – Maison T4

Située sur l’ancien site des serres municipales de Dinard, la résidence des Serres vous offre un environnement mêlant espaces verts, square, jardins partagés, à deux pas du centre et de la plage.

La maison présente une haute performance énergétique, une belle orientation et des prestations de qualité. Profitez également d’un espace extérieur privatif.

Dispositif BRS (Bail Réel Solidaire)

  • Jardin
  • Terrasse
  • Chape acoustique
  • Norme RT 2012 -20%

Nos biens diponibles

Pour connaître la disponibilité des biens, cliquez sur « Vue Etages » et choisissez votre étages.

Livraison début 2026